Projekt - Fakten / Daten
LAGE
Eiswerderstr. 13 – 13a, 13585 Berlin-Spandau, Ortsteil Hakenfelde
Der Standort ist auf der Insel Eiswerder, die verbunden ist mit dem Festland über zwei Straßenbrücken:
von Osten: „Kleine Eiswerderbrücke“ + von Westen: „Große Eiswerderbrücke“.
Der öffentliche Verkehrsanschluß zum Spandauer Bahnhof, ein Fernbahnhof,
ist zusätzlich auch günstig angeschlossen mit Regionalbahnen
RE2 + RE4 + RE6 + RB10 + RB13 + RB14 und
über die ÖPNV-Verbindungen zum S+U Rathaus Spandau
mit S3 + S9 (10-Minuten-Takt) und U7 (5-Minuten-Takt) und
Bus-Verbindung von der Station direkt vor dem Rathaus Spandau bis zur Haltestelle Eiswerder:
ca. alle 5 Minuten, Bus M36 oder Bus 136 mit 3 Zwischenhalten,
Bus-Fahrzeit ca.5 Minuten bis Ausstieg Haltestelle Eiswerderstraße,
Fußweg ca.10 Minuten (ca.590m) über die „Große Eiswerderbrücke“ über die Havel
+ dann gleich hinter dem Park links.
.
Zu Fuß direkt vom Bahnhof Spandau dauert es ca. 25-35 Minuten – je nach persönlicher Fitness:
Alternativ entweder quer durch die Altstadt Spandau oder, fast durchgängig, direkt an der Havel entlang:
auf der Sternbergpromenade, dann Möllentordamm, über den Mühlengraben,
durch den Wröhmännerpark und über die Wröhmännerstraße zum Eiswerderufer
und die Frieda-Arnheim-Promenade bis auf die Große Eiswerderbrücke.
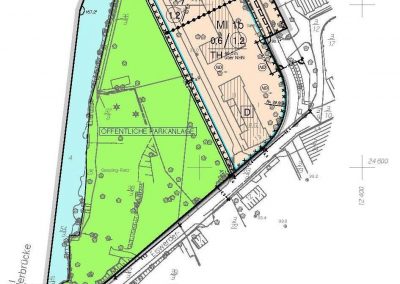
Westlich des Flurstückes Nr.201 im Flur 2 bis zum Spandauer See entstand 2009 eine öffentliche Parkanlage.
Das Grundstück mit 2.735m² liegt, laut Bebauungsplan VIII-533b, im Mischgebiet M1b,
in dem Wohngebäude nur ausnahmsweise zugelassen werden bzw. wurden.
Südöstlich davon erstreckt sich, laut Bebauungsplan VIII-533a ein Gewerbegebiet,
das umliegende mögliche Wohnnutzungen bisher einschränkte.
Seit 2022 entstehen mehrgeschossige Neubauten auf dem südlichen Grundstück Eiswerderstr.10-12,
die die bisher freie Aussicht auf den Spandauer See und die Zitadelle nun zubauen.
RECHTSFORM
Erbbaurechtsgeberin ist die Stiftung trias – eine gemeinnützige Stiftung für Boden, Ökologie und Wohnen – mit einem Erbbaurechtsvertrag über 99 Jahre. Ermöglicht wurde dies über eine Zustiftung an die trias und Darlehen der Projektbegründer:innen.
Die Projekt-Gründerin „Eiswerder13GbR“ war Erbbaurechtsnehmerin bis die Rechte letztendlich insgesamt übergingen an die „denk-mal EISWERDER13 gGmbH“.
Die Nutzer:innen sind überwiegend Gesellschafter:innen der gemeinnützigen Gesellschaft „denk-mal EISWERDER13 gGmbH“, die umfirmiert bzw. umbenannt wurde aus der vormaligen „Alte Schule-EISWERDER13 GmbH“. Diese gGmbH ist die Verwalterin des Erbbaurechts. Der Gegenstand dieser gemeinnützigen Gesellschaft ist die Förderung von Denkmalschutz und Denkmalpflege, Naturschutz und Landschaftspflege sowie Umweltschutz inklusive Klimaschutz, was insbesondere dadurch verwirklicht wird, daß die Gesellschaft als Erbbauberechtigte des Grundstücks Eiswerderstr.13
a, Erhaltungs-, Wiederherstellungs- und Sanierungsmaßnahmen an dem kontaminierten Grundstück mit seinen drei Naturdenkmalen und dem historischen und denkmalgeschützten Gebäude auf dem Grundstück in Abstimmung mit den zuständigen Fachbehörden und entsprechend den Vorgaben der gemeinnützigen Stiftung trias als Eigentümerin des Grundstückes entwickelt und durchführt.
b, im Rahmen von Ausstellungen, Führungen, Veranstaltungen und Veröffentlichungen sowie Informationen zum Denkmal-, Natur- und Umweltschutz auf dem Grundstück Eiswerderstr.13 einer größeren Öffentlichkeit zugänglich macht.
KOSTEN + FINANZIERUNG – Spenden
Als gGmbH-Einlage bzw. Kaution sind generell 30,00€ pro m² Nutzfläche von den Nutzer:innen bzw. Mieter:innen zu entrichten.
Weiters ist monatliches Nutzungsentgelt bzw. Miete zu begleichen, ebenso entsprechend der beanspruchten Nutzflächen – zur Gewährleistung der Liquidität der gGmbH, einer gemeinnützigen Non-Profit-Gesellschaft.
Erschließungskosten bis zur Nutzungseinheit und die Aufwertung der Gemeinschaftsflächen innen und im Außenbereich werden von der Gemeinschaft aufgebracht. Dies erfolgt nach und nach, je nach aktueller Finanzlage bzw. über freiwillige Selbsthilfe-Leistungen bzw. ehrenamtliche Tätigkeiten – entsprechend den jeweiligen Möglichkeiten.
Eventuell noch notwendige Nutzbarmachungskosten bzw. Umbauten für die eigengenutzte Nutzungseinheit nach eigenen individuellen Vorstellungen tragen die einzelnen Nutzer:innen selbst.
Sämtliche finanziellen Abwicklungen laufen über das Konto mit der IBAN DE02 4306 0967 1139 8181 00 bei der sozialen und ökologischen GLS-Bank, einer Gemeinschaftsbank für Leihen und Schenken.
Für finanzielle Unterstützungen, zweckgebunden oder als allgemeine Spende für unser gemeinnütziges Projekt, können von uns auch Spendenquittungen ausgestellt werden.
Die denk-mal EISWERDER13 gGmbH ist eingetragen im Handelsregister des Amtsgerichtes Berlin-Charlottenburg unter HRA-143314B
Beim Finanzamt für Körperschaften I in Berlin wird die denk-mal EISWERDER13 gGmbH als Körperschaft geführt unter der Steuernummer 27/611/05888.
Die Körperschaft ist nach §5, Abs.1, Nr.9 KStG von der Körperschaftssteuer und nach §3, Nr.6 GewStG von der Gewerbesteuer befreit, weil sie ausschließlich und unmittelbar steuerbegünstigten gemeinnützigen Zwecken im Sinne der §§51ff. AO dient.
Die Körperschaft fördert folgende gemeinnützige Zwecke:
> Förderung des Denkmalschutzes und der Denkmalpflege (§52, Abs.2, Satz 1, Nr.6 AO)
> Förderung des Naturschutzes und der Landschaftspflege (§52, Abs.2, Satz 1, Nr.8 AO)
> Förderung des Umweltschutzes einschließlich des Klimaschutzes (§52, Abs.2, Satz1, Nr.8 AO)
Zuwendungsbestätigungen für Spenden dürfen nur ausgestellt werden, wenn das Datum des Freistellungsbescheides nicht länger als fünf Jahre zurückliegt. Die Frist ist taggenau zu berechnen (§63 Abs.5 AO).
Datum des letztgültigen Freistellungsbescheides für die denk-mal EISWERDER13 gGmbH: 28.04.2026.
Nach §19 UStG erfolgt bei Rechnungslegungen, wie z.B. bei der Vermietung des Veranstaltungsraumes „InselSalonEiswerder13“, keine Mehrwertsteuerausweisung.
OBJEKT+ AUSSTATTUNG
Das nicht unterkellerte anfangs zwei- und später dreistöckige Massivgebäude aus Ziegelmauerwerk, erbaut in den Jahren 1893/94, verfügt über zwei Treppenhäuser (Aufgang 1 und Aufgang 2), die in jeder Etage über einen Flur verbunden sind.
Die Gesamtnutzflächen des Gebäudes inclusive der Gemeinschaftsflächen betragen ca. 1.246m².
Der Einbau einer Gaszentralheizungsanlage erfolgte im Jahre 2011 unter Weiterverwendung der vorhandenen Gliederheizkörper und Verteilleitungen.
Die bestehenden Gemeinschaftstoiletten im Erdgeschoß und im 2.Obergeschoß wurden instandgesetzt bzw. umgebaut; im Erdgeschoß gibt es nun auch noch eine barrierefreie Toilette für Menschen mit Behinderung, eine einfache Dusche, Waschmaschinen und eine Gemeinschaftsküche.
Eigene Sanitärräumlichkeiten in Nutzungseinheiten mit einer Warmwasserversorgung haben, je nach dem tatsächlichen Bedarf, die Nutzer:innen dann jeweils selbst fachgerecht installieren lassen.
Außer den Naßräumen sind nahezu alle Räume mit Linoleum ausgestattet. Individuelle Oberbodenbeläge wurden, wenn gewünscht, von den Nutzer:innen selbst fachgerecht eingebracht.
Da sich das Objekt (bis 8.11.20) in der Einflugschneise des Flughafens Berlin Tegel befand, waren ca.20 Jahre vor unserer Übernahme im Jahr 2010 einige Schallschutzfenster aus Holz eingebaut worden – aber eben nur entsprechend dem damaligen Standard – und auch nicht überall.
NUTZER:INNEN
Büros, Ateliers, Werkstätten, Studios, für selbständig Schaffende unterschiedlicher Berufsfelder und Nationen bzw. Vereine und Verbände haben sich sukzessive in unserem Denkmalobjekt niedergelassen. Eine reine Wohnnutzung ist in dem Erbpacht-Projekt nicht möglich bzw. nicht vorgesehen, sondern nur in Teilbereichen und nur in Kombination mit einer Arbeitsstätte – also eine kleinteilige Nutzungsmischung anstatt strikter Trennung von Arbeiten und Leben.
Der Veranstaltungsraum InselSalon EISWERDER13 und andere Nebenräume stehen auch der Öffentlichkeit zur Anmietung zur Verfügung – zur weiteren Unterstützung der Projektausgestaltung – wie auch zum „Netzwerken“ in kleineren und größeren Runden.
ZEITRAHMEN
Im Jahre 2010 startete das Projekt mit Nutzbarmachung bzw. Umnutzung des ehemaligen Verwaltungsgebäudes. Der Bezug erfolgte sukzessive ab 2011 – anfangs mehr oder weniger unter provisorischen Bedingungen. Vieles wurde zwischenzeitlich geleistet – auch organisatorisch und rechtlich, sowie bautechnisch an den Denkmalen, an Grund, Boden und Aufwuchs. Diverse Einzelmaßnahmen stehen weiterhin an wie Pflege, Umgestaltungen bzw. weitere Verschönerungen von Gemeinschaftsflächen innen und außen und so werden freiwillig gestaltete künstlerische Attribute, in ihrer Einmaligkeit auch erst nach und nach erkennbar …
Der entsprechend finanziellen Möglichkeiten schon sehr lange geplante Einbau von Sonnenkollektoren etc. zur Verbesserung möglicher Autarkie stellt nun im Rahmen eines zu verändernden neuen Energiegesamtkonzeptes noch eine riesen Herausforderung für uns und unseren im Prinzip recycelten Altbaubestand dar.
